设计快讯设计快讯
设计导航
最新
设计资讯
设计案例
设计知识

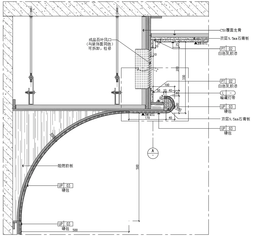
透光膜天花施工工艺

2025-10-27 18:58:03

图片 1
图片 2
图片 3
图片 4
+5

室内设计师必看!集成墙板选装与设计落地攻略

2025-12-23 22:37:28

主要图片

室内设计师必看!尼龙涤纶地毯差异及卷材施工要点解读

2025-12-01 22:33:32

图片 1
图片 2
图片 3
图片 4
+2

精装修品质怎么管?底层逻辑+可操作方案

2025-11-24 20:45:56

图片 1
图片 2
图片 3
图片 4
+1

国际化建筑团队Link-Arc招聘室内设计师,公建项目给实践机会

2025-11-09 17:00:24

图片 1
图片 2
图片 3
图片 4
+5

行业热点

  • 1B站上海新总部幕墙安装,ennead设计亮点可参考年轻科技办公
  • 2厨房开洞设计居然能破解痛点成家庭情感枢纽
  • 3安缦2027年推首艘顶奢游艇 打造海上隐世漂浮酒店
  • 4迪拜帆船酒店因无人机受损引地标设计思考
  • 5Helmut Lang档案展,藏着室内设计的系统整合秘诀
  • 6吉奥梅因公寓‘减法+精确性’重构空间融阿尔卑斯景观
  • 7打破冷硬感!高端改善极简风大宅设计超温润
  • 8年轻人“反骨装修”火了:实用主义颠覆设计常规
  • 9海底捞自嗨锅烫坏沙发玩梗,设计师要注意这俩点
  • 10圣家堂2026封顶2034竣工,高迪慢设计启发设计师